8716 34 Avenue , Calgary, Alberta

Residential For Sale in Calgary, Alberta

$939,000

  • Residential
    Property Type
  • 5
    Bedrooms
  • 4
    Bath
  • 2
    Garage
  • 1,982
    Sq Ft
  • 2025
    Year Built

Discover the epitome of modern living in this impeccably located home! Nestled on a quiet street, steps from Bowness Park and next to a school, this 5-bedroom, 3.5-bath residence offers over 2700 sqft of luxury. The home showcases countless upgrades, including a CUSTOM UPGRADED QUARTZ BACKSPLASH throughout. The gourmet kitchen features a stainless steel KitchenAid package with built-in wall oven & microwave, double-door fridge with waterline, dishwasher, custom canopy hood fan, plus a large island with custom slat design and quartz waterfall, pantry, pull-outs, quartz counters, under-cabinet lighting, and custom cabinetry. The main floor also includes a formal dining area, living room with custom built-ins & fireplace, and a designer mudroom with bench & storage. Upstairs, you’ll find two spacious bedrooms, a laundry room with sink, a full bath, a bonus room with 10ft tray ceiling, and a luxurious master retreat with tray ceilings, a vast custom walk-in closet, and a spa-inspired ensuite featuring a freestanding tub, double vanity, and custom-tiled shower. The fully developed LEGAL basement suite offers spacious open-concept living with a bright living room enhanced by a large window, a dining area, and a custom kitchen complete with quartz backsplash, microwave hoodfan, breakfast bar, and ample counter space. It also features two large bedrooms, stacked laundry, and a full bathroom with a tiled surround shower. Exterior highlights include custom concrete steps, walkways, and patio, full landscaping, new fencing, gas lines to the garage & BBQ, and a private backyard area designed for basement tenants to enjoy. Additional features: 9ft ceilings on all levels, 8ft doors, flat painted ceilings (main & upper), knockdown basement ceilings, smart home wiring, upgraded lighting, custom faucets, central vac rough-in, AC rough-in, and CAT 5 wiring. A true blend of craftsmanship and intelligent design, this home is a must-see. Don’t miss this opportunity—next door unit 8718 is also available!

Street Address: 8716 34 Avenue
City: Calgary
Province/State: Alberta
Postal Code: N/A
County/Parish: Calgary
Subdivision: Bowness
Country: Canada
Latitude: 51.09291270
Longitude: -114.21440770

MLS® Number: A2259265
Price: $939,000
Property Area: 1,982 Sq ft
Bedrooms: 5
Bathrooms Half: 1
Bathrooms Full: 3
Living Area: 1,982 Sq ft
Building Area: 0 Sq ft
Year Built: 2025
Listing Date: Sep 23, 2025
Garage Spaces: 2
Property Type: Residential
Property Subtype: Semi Detached (Half Duplex)
MLS Status: Active

Additional Details

Flooring: N/A
Construction: Cement Fiber Board,Concrete,Silent Floor Joists,Wood Frame
Parking: Alley Access,Double Garage Detached,On Street,Oversized
Appliances: Bar Fridge,Dishwasher,Dryer,Garage Control(s),Gas Cooktop,Microwave,Microwave Hood Fan,Range,Range Hood,Refrigerator,Washer,Washer/Dryer Stacked
Stories: N/A
Zoning: RC-G
Fireplace: N/A
Amenities: Clubhouse,Fishing,Park,Playground,Pool,Schools Nearby,Shopping Nearby,Sidewalks,Street Lights,Tennis Court(s),Walking/Bike Paths

Utilities & Systems

Heating: High Efficiency,Forced Air,Humidity Control,Natural Gas
Cooling: Rough-In

Property Type Residential
Building Type Semi Detached (Half Duplex)
Square Footage 1,982 sqft
Community Name Bowness
Subdivision Name Bowness
Title Fee Simple
Land Size 3,000 sqft
Built in 2025
Annual Property Taxes Contact listing agent
Parking Type Garage

Bedrooms
Above Grade 3
Bathrooms
Total 4
Partial 1
Interior Features
Appliances Included Bar Fridge, Dishwasher, Dryer, Garage Control(s), Gas Cooktop, Microwave, Microwave Hood Fan, Range, Range Hood, Refrigerator, Washer, Washer/Dryer Stacked
Flooring Carpet, Tile, Vinyl Plank
Building Features
Features Bar, Breakfast Bar, Built-in Features, Closet Organizers, Double Vanity, High Ceilings, Kitchen Island, No Animal Home, No Smoking Home, Open Floorplan, Pantry, Quartz Counters, See Remarks, Smart Home, Soaking Tub, Stone Counters, Storage, Sump Pump(s), Tray Ceiling(s), Vinyl Windows, Walk-In Closet(s), Wired for Data, Wired for Sound
Construction Material Cement Fiber Board, Concrete, Silent Floor Joists, Wood Frame
Structures Patio, Porch
Heating & Cooling
Cooling Rough-In
Heating Type High Efficiency, Forced Air, Humidity Control, Natural Gas
Exterior Features
Exterior Finish Cement Fiber Board, Concrete, Silent Floor Joists, Wood Frame
Neighbourhood Features
Community Features Clubhouse, Fishing, Park, Playground, Pool, Schools Nearby, Shopping Nearby, Sidewalks, Street Lights, Tennis Court(s), Walking/Bike Paths
Amenities Nearby Clubhouse, Fishing, Park, Playground, Pool, Schools Nearby, Shopping Nearby, Sidewalks, Street Lights, Tennis Court(s), Walking/Bike Paths
Parking
Parking Type Garage
Total Parking Spaces 2

Interior Size
Total Finished Area: 1,982 sq ft
Total Finished Area (Metric): 184.13 sq m
Main Level: 940 sq ft
Upper Level: 1,042 sq ft
Below Grade: 776 sq ft
Room Count
Bedrooms: 5
Bathrooms: 4
Full Bathrooms: 3
Half Bathrooms: 1
Rooms Above Grade: 7
Lot Information
Lot Size: 3,000 sq ft
Lot Size (Acres): 0.07 acres
Frontage: 25 ft

  • Bar
  • Breakfast Bar
  • Built-in Features
  • Closet Organizers
  • Double Vanity
  • High Ceilings
  • Kitchen Island
  • No Animal Home
  • No Smoking Home
  • Open Floorplan
  • Pantry
  • Quartz Counters
  • See Remarks
  • Smart Home
  • Soaking Tub
  • Stone Counters
  • Storage
  • Sump Pump(s)
  • Tray Ceiling(s)
  • Vinyl Windows
  • Walk-In Closet(s)
  • Wired for Data
  • Wired for Sound
  • Lighting
  • Private Yard
  • Bar Fridge
  • Dishwasher
  • Dryer
  • Garage Control(s)
  • Gas Cooktop
  • Microwave
  • Microwave Hood Fan
  • Range
  • Range Hood
  • Refrigerator
  • Washer
  • Washer/Dryer Stacked
  • Separate/Exterior Entry
  • Finished
  • Full
  • Suite
  • Clubhouse
  • Fishing
  • Park
  • Playground
  • Pool
  • Schools Nearby
  • Shopping Nearby
  • Sidewalks
  • Street Lights
  • Tennis Court(s)
  • Walking/Bike Paths
  • Cement Fiber Board
  • Concrete
  • Silent Floor Joists
  • Wood Frame
  • Electric
  • Living Room
  • Mantle
  • Tile
  • Poured Concrete
  • Back Lane
  • Back Yard
  • City Lot
  • Alley Access
  • Double Garage Detached
  • On Street
  • Oversized
  • Patio
  • Porch

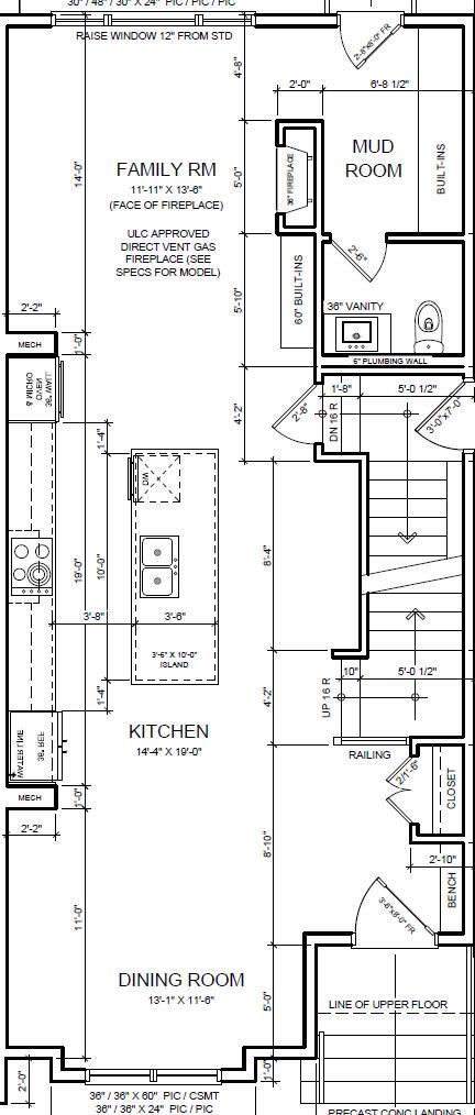
Floor plan information is not available for this property.

Monthly Payment Breakdown
Principal & Interest: $0
Property Tax: $0
Home Insurance: $0
HOA Fees: $0
PMI: $0

Total Monthly Payment: $0
Chart Mortgage:

Loading Walk Score...

What's Nearby?

Powered by Yelp


REALTOR® Details