13 Creekview Manor SW, Calgary, Alberta

Residential For Sale in Calgary, Alberta

$609,900

  • Residential
    Property Type
  • 4
    Bedrooms
  • 4
    Bath
  • 0
    Garage
  • 1,585
    Sq Ft
  • 2025
    Year Built

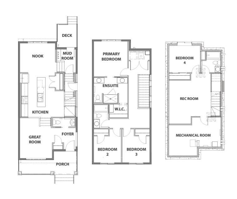
Welcome to the Strathcona by Cedarglen Homes - a home designed for those who crave connection, comfort, & a touch of everyday luxury. Nestled in Creekview, Calgary’s newest southwest community surrounded by natural beauty and modern convenience, this brand new 4 bedroom home delivers the perfect balance of function and sophistication. Step through the inviting covered front veranda, and you’re greeted by a warm, open-concept main floor that invites gathering. The great room at the front of the home sets the tone - bright, welcoming, and effortlessly stylish with soaring ceilings. At the heart of the home, the kitchen brings everyone together with its light cabinetry, quartz countertops, and striking black hardware. A large central island makes it easy to entertain while staying connected to the dining nook overlooking the backyard deck - perfect for summer barbecues and cozy weekend mornings. Everyday living feels effortless thanks to thoughtful details like the mudroom with built-in storage, the tucked away powder room, and the natural flow between kitchen, dining, and living spaces. Upstairs, the primary suite is your retreat - spacious, serene, & complete with a walk-in closet and spa-inspired ensuite featuring a fully tiled shower and dual sinks. Two additional bedrooms, a bright main bath, and a convenient flex area (great for a play space or desk) make this level as practical as it is peaceful. The finished basement adds incredible flexibility, offering a separate entrance, fourth bedroom, full bathroom and a versatile rec room - the perfect setup for guests, teens, or future suite potential (subject to city permits and approval). Modern finishes run throughout, from warm-toned vinyl plank flooring to the subway tile backsplash and stunning light fixtures creating a cohesive look that feels fresh and timeless. Outside, a finished deck with a gas line invites you to enjoy the sunshine and fresh air, while the stone façade on the front of the home adds instant curb appeal. With Cedarglen’s trusted craftsmanship, this home is a rare opportunity to own in one of Calgary’s most exciting new communities - where style meets simplicity and every detail is designed for real life. Live beautifully in Creekview. Just minutes from Macleod and Stoney Trail, this community offers effortless access to downtown, major shopping like Township Centre, and the surrounding communities of Silverado and Legacy for schools, dining, and recreation. Schedule your private showing today and discover why the Strathcona is more than a home - it’s your next chapter.

Street Address: 13 Creekview Manor SW
City: Calgary
Province/State: Alberta
Postal Code: N/A
County/Parish: Calgary
Subdivision: Pine Creek
Country: Canada
Latitude: 50.85259500
Longitude: -114.06523580

MLS® Number: A2269434
Price: $609,900
Property Area: 1,585 Sq ft
Bedrooms: 4
Bathrooms Half: 1
Bathrooms Full: 3
Living Area: 1,585 Sq ft
Building Area: 0 Sq ft
Year Built: 2025
Listing Date: Nov 07, 2025
Garage Spaces: 0
Property Type: Residential
Property Subtype: Detached
MLS Status: Active

Additional Details

Flooring: N/A
Construction: Cement Fiber Board,Stone,Vinyl Siding
Parking: Alley Access,Off Street,Parking Pad
Appliances: Dishwasher,Microwave,Range Hood
Stories: N/A
Zoning: R-G
Fireplace: N/A
Amenities: Park,Playground,Sidewalks,Street Lights,Walking/Bike Paths

Utilities & Systems

Heating: High Efficiency
Cooling: None

Property Type Residential
Building Type Detached
Square Footage 1,585 sqft
Community Name Pine Creek
Subdivision Name Pine Creek
Title Fee Simple
Land Size 2,798 sqft
Built in 2025
Annual Property Taxes Contact listing agent
Parking Type Alley Access
Time on MLS Listing 31 days

Bedrooms
Above Grade 3
Bathrooms
Total 4
Partial 1
Interior Features
Appliances Included Dishwasher, Microwave, Range Hood
Flooring Carpet, Tile, Vinyl Plank
Building Features
Features Double Vanity, Kitchen Island, No Animal Home, No Smoking Home, Open Floorplan, Quartz Counters, Separate Entrance, Tankless Hot Water, Walk-In Closet(s)
Construction Material Cement Fiber Board, Stone, Vinyl Siding
Structures Deck, Front Porch
Heating & Cooling
Cooling None
Heating Type High Efficiency
Exterior Features
Exterior Finish Cement Fiber Board, Stone, Vinyl Siding
Neighbourhood Features
Community Features Park, Playground, Sidewalks, Street Lights, Walking/Bike Paths
Amenities Nearby Park, Playground, Sidewalks, Street Lights, Walking/Bike Paths
Parking
Parking Type Alley Access
Total Parking Spaces 2

Interior Size
Total Finished Area: 1,585 sq ft
Total Finished Area (Metric): 147.27 sq m
Main Level: 766 sq ft
Upper Level: 820 sq ft
Below Grade: 477 sq ft
Room Count
Bedrooms: 4
Bathrooms: 4
Full Bathrooms: 3
Half Bathrooms: 1
Rooms Above Grade: 6
Lot Information
Lot Size: 2,798 sq ft
Lot Size (Acres): 0.06 acres
Frontage: 25 ft
Legal
Legal Description: 2411541;7;22
Title to Land: Fee Simple

  • Double Vanity
  • Kitchen Island
  • No Animal Home
  • No Smoking Home
  • Open Floorplan
  • Quartz Counters
  • Separate Entrance
  • Tankless Hot Water
  • Walk-In Closet(s)
  • BBQ gas line
  • Dishwasher
  • Microwave
  • Range Hood
  • Full
  • Park
  • Playground
  • Sidewalks
  • Street Lights
  • Walking/Bike Paths
  • Cement Fiber Board
  • Stone
  • Vinyl Siding
  • Poured Concrete
  • Back Lane
  • Back Yard
  • Rectangular Lot
  • Alley Access
  • Off Street
  • Parking Pad
  • Deck
  • Front Porch

Floor plan information is not available for this property.

Monthly Payment Breakdown
Principal & Interest: $0
Property Tax: $0
Home Insurance: $0
HOA Fees: $0
PMI: $0

Total Monthly Payment: $0
Chart Mortgage:

Loading Walk Score...

What's Nearby?

Powered by Yelp


REALTOR® Details