4320 Centre A Street NE, Calgary, Alberta

Residential For Sale in Calgary, Alberta

$999,900

  • Residential
    Property Type
  • 4
    Bedrooms
  • 4
    Bath
  • 2
    Garage
  • 2,014
    Sq Ft
  • 2026
    Year Built

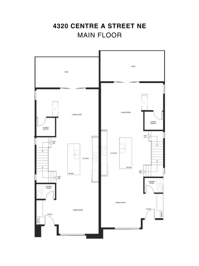
MOVE IN THIS SUMMER! PURCHASE EARLY AND CHOOSE YOUR SELECTIONS! Close to green space and countless amenities, this brand new 2-storey infill by Zenith Group offers over 2,800 sq ft of thoughtfully designed living space. Hosting 4 beds, 3.5 baths, a walk-out basement, and a double detached garage – this property is ideal for families, professionals, or investors who appreciate a blend of elegance and functionality. The exterior façade provides a distinctive curb appeal with brick & Hardie Board. Inside, the main floor offers an open-concept layout with soaring ceilings, a front dining area, and a modern kitchen with a central island, stainless steel appliances (including a gas stove), tile backsplash, and full-height cabinetry. The living room centres around a gas fireplace and provides access to an expansive rear deck, while a practical rear mudroom adds everyday functionality. A concrete walkway/staircase connects the front and rear of the home, leading to a double detached garage that adds everyday convenience and secure storage. Upstairs you’ll find 3 bedrooms, including a spacious primary retreat with a walk-in closet and a 5-piece ensuite with dual sinks, quartz counters, a soaker tub, and a fully tiled shower. Two additional bedrooms, a full bathroom, and an upper laundry with a side-by-side washer and dryer complete the level. The walk-out basement offers flexibility for a potential 1-bedroom legal suite (subject to approval) or additional living space, with 1 bedroom, a full bathroom, and extra storage. Located steps from Highland Park and near various playgrounds, this home enjoys immediate access to green space and outdoor recreation. Families benefit from multiple schools, while the nearby Highland Park Community Centre offers year-round recreation. Everyday conveniences are just minutes away, including Safeway, Save-On-Foods and Superstore. This home also offers quick access to major roadways, including Centre Street and Deerfoot Trail, making commuting to downtown and other parts of the city efficient. ATTENTION FIRST-TIME BUYERS: You could qualify for up to a 100% GST rebate on this new home! Enquire today to find out more!

Street Address: 4320 Centre A Street NE
City: Calgary
Province/State: Alberta
Postal Code: N/A
County/Parish: Calgary
Subdivision: Highland Park
Country: Canada
Latitude: 51.09119663
Longitude: -114.06060841

MLS® Number: A2295816
Price: $999,900
Property Area: 2,014 Sq ft
Bedrooms: 4
Bathrooms Half: 1
Bathrooms Full: 3
Living Area: 2,014 Sq ft
Building Area: 0 Sq ft
Year Built: 2026
Listing Date: Mar 25, 2026
Garage Spaces: 2
Property Type: Residential
Property Subtype: Semi Detached (Half Duplex)
MLS Status: Active

Additional Details

Flooring: N/A
Construction: Brick
Parking: Double Garage Detached
Appliances: Dishwasher,Dryer,Gas Stove,Microwave,Range Hood,Refrigerator,Washer
Stories: N/A
Zoning: M-CG
Fireplace: N/A
Amenities: Park,Playground,Schools Nearby,Shopping Nearby,Sidewalks,Walking/Bike Paths

Utilities & Systems

Heating: Forced Air
Cooling: None

Property Type Residential
Building Type Semi Detached (Half Duplex)
Square Footage 2,014 sqft
Community Name Highland Park
Subdivision Name Highland Park
Title Fee Simple
Land Size 3,245 sqft
Built in 2026
Annual Property Taxes Contact listing agent
Parking Type Garage

Bedrooms
Above Grade 3
Bathrooms
Total 4
Partial 1
Interior Features
Appliances Included Dishwasher, Dryer, Gas Stove, Microwave, Range Hood, Refrigerator, Washer
Flooring Carpet, Hardwood
Building Features
Features Built-in Features, Double Vanity, Kitchen Island, Quartz Counters, See Remarks, Soaking Tub, Walk-In Closet(s)
Construction Material Brick
Structures Balcony(s), Patio
Heating & Cooling
Cooling None
Heating Type Forced Air
Exterior Features
Exterior Finish Brick
Neighbourhood Features
Community Features Park, Playground, Schools Nearby, Shopping Nearby, Sidewalks, Walking/Bike Paths
Amenities Nearby Park, Playground, Schools Nearby, Shopping Nearby, Sidewalks, Walking/Bike Paths
Parking
Parking Type Garage
Total Parking Spaces 2

Interior Size
Total Finished Area: 2,014 sq ft
Total Finished Area (Metric): 187.10 sq m
Main Level: 973 sq ft
Upper Level: 1,040 sq ft
Below Grade: 839 sq ft
Room Count
Bedrooms: 4
Bathrooms: 4
Full Bathrooms: 3
Half Bathrooms: 1
Rooms Above Grade: 6
Lot Information
Lot Size: 3,245 sq ft
Lot Size (Acres): 0.07 acres
Frontage: 25 ft

  • Built-in Features
  • Double Vanity
  • Kitchen Island
  • Quartz Counters
  • See Remarks
  • Soaking Tub
  • Walk-In Closet(s)
  • Balcony
  • BBQ gas line
  • Dishwasher
  • Dryer
  • Gas Stove
  • Microwave
  • Range Hood
  • Refrigerator
  • Washer
  • Full
  • Park
  • Playground
  • Schools Nearby
  • Shopping Nearby
  • Sidewalks
  • Walking/Bike Paths
  • Brick
  • Gas
  • Poured Concrete
  • Back Yard
  • Front Yard
  • Double Garage Detached
  • Balcony(s)
  • Patio

Floor plan information is not available for this property.

Monthly Payment Breakdown
Principal & Interest: $0
Property Tax: $0
Home Insurance: $0
HOA Fees: $0
PMI: $0

Total Monthly Payment: $0
Chart Mortgage:

Loading Walk Score...

What's Nearby?

Powered by Yelp


REALTOR® Details

Michael Ferianec