2, 1930 24A Street SW, Calgary, Alberta

Condo For Sale in Calgary, Alberta

$499,900

  • Condo
    Property Type
  • 2
    Bedrooms
  • 2
    Bath
  • 1
    Garage
  • 1,280
    Sq Ft
  • 1999
    Year Built

Welcome to comfortable inner-city living in the vibrant community of Killarney. This beautifully maintained bungalow-style townhome offers the perfect blend of style, comfort, and convenience in a quiet residential setting, just moments from the energy of 17th Avenue. Freshly painted throughout, the home feels bright and inviting from the moment you step inside. Large windows fill the space with natural light, highlighting the dramatic 12-foot ceilings, luxury vinyl plank and slate flooring, and the warmth of in-floor heating. The open design creates a welcoming flow that’s ideal for both relaxing and entertaining. The kitchen is thoughtfully designed with an eating bar, pantry, new black double sink, and stylish new backsplash, making it both functional and attractive for everyday living. Just off the main living area, step outside to your cozy, private fenced patio—a perfect spot to enjoy a quiet morning coffee or unwind at the end of the day. This spacious home offers over 1,200 sq. ft. of living space with two bedrooms and a versatile den area ideal for a home office. The generous primary bedroom features a walk-in closet and a private ensuite with a jetted soaker tub and separate shower, creating a comfortable retreat. A second full bathroom adds convenience for guests or family. The well-maintained complex consists of only four units and is self-managed, helping keep condo fees low while maintaining pride of ownership throughout. You’ll appreciate the convenience of your garage parking stall at the rear, along with easy access to 17th Avenue, Crowchild Trail, parks, playgrounds, schools, transit, shops, and restaurants. If you’re looking for bright, low-maintenance inner-city living in one of Calgary’s most loved neighbourhoods, this Killarney gem is a must see. BOOK YOUR APPOINTMENT TODAY. Some of the photos have been virtually staged.

Street Address: 2, 1930 24A Street SW
City: Calgary
Province/State: Alberta
Postal Code: N/A
County/Parish: Calgary
Subdivision: Richmond
Country: Canada
Latitude: 51.03669531
Longitude: -114.11894847

MLS® Number: A2292046
Price: $499,900
Property Area: 1,280 Sq ft
Bedrooms: 2
Bathrooms Half: 0
Bathrooms Full: 2
Living Area: 1,280 Sq ft
Building Area: 0 Sq ft
Year Built: 1999
Listing Date: Mar 11, 2026
Garage Spaces: 1
Property Type: Residential
Property Subtype: Row/Townhouse
MLS Status: Active

Additional Details

Flooring: N/A
Construction: Stucco,Vinyl Siding,Wood Frame
Parking: Single Garage Detached
Appliances: Dishwasher,Dryer,Electric Stove,Refrigerator,Washer
Stories: N/A
Zoning: M-C1
Fireplace: N/A
Amenities: Park,Playground,Pool,Schools Nearby,Shopping Nearby,Sidewalks,Tennis Court(s)

Utilities & Systems

Heating: In Floor,Natural Gas
Cooling: None

Property Type Residential
Building Type Row/Townhouse
Square Footage 1,280 sqft
Community Name Richmond
Subdivision Name Richmond
Title Fee Simple
Land Size Unknown
Built in 1999
Annual Property Taxes Contact listing agent
Parking Type Garage
Time on MLS Listing 11 days

Bedrooms
Above Grade 2
Bathrooms
Total 2
Partial 0
Interior Features
Appliances Included Dishwasher, Dryer, Electric Stove, Refrigerator, Washer
Flooring Ceramic Tile, Laminate, Slate
Building Features
Features No Smoking Home
Style Attached
Construction Material Stucco, Vinyl Siding, Wood Frame
Building Amenities None
Structures Patio
Heating & Cooling
Cooling None
Heating Type In Floor, Natural Gas
Exterior Features
Exterior Finish Stucco, Vinyl Siding, Wood Frame
Neighbourhood Features
Community Features Park, Playground, Pool, Schools Nearby, Shopping Nearby, Sidewalks, Tennis Court(s)
Pets Allowed Yes
Amenities Nearby Park, Playground, Pool, Schools Nearby, Shopping Nearby, Sidewalks, Tennis Court(s)
Maintenance or Condo Information
Maintenance Fees $325 Monthly
Maintenance Fees Include Common Area Maintenance, Insurance, Maintenance Grounds, Parking, Reserve Fund Contributions, Snow Removal
Parking
Parking Type Garage
Total Parking Spaces 1

Interior Size
Total Finished Area: 1,280 sq ft
Total Finished Area (Metric): 118.89 sq m
Main Level: 1,280 sq ft
Room Count
Bedrooms: 2
Bathrooms: 2
Full Bathrooms: 2
Rooms Above Grade: 4
Lot Information
Legal
Legal Description: 0010679;2
Title to Land: Fee Simple

  • No Smoking Home
  • Private Entrance
  • Private Yard
  • Dishwasher
  • Dryer
  • Electric Stove
  • Refrigerator
  • Washer
  • None
  • Park
  • Playground
  • Pool
  • Schools Nearby
  • Shopping Nearby
  • Sidewalks
  • Tennis Court(s)
  • Stucco
  • Vinyl Siding
  • Wood Frame
  • Gas
  • Great Room
  • Mantle
  • Back Lane
  • Back Yard
  • Few Trees
  • Front Yard
  • Single Garage Detached
  • Patio

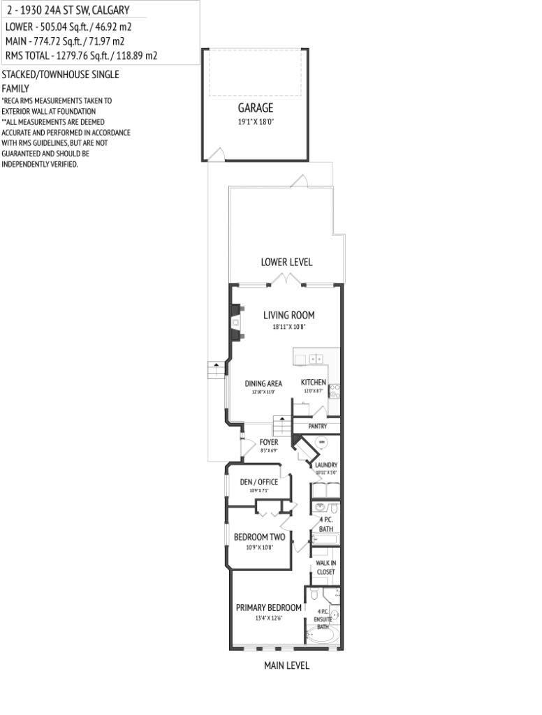
Floor plan information is not available for this property.

Monthly Payment Breakdown
Principal & Interest: $0
Property Tax: $0
Home Insurance: $0
HOA Fees: $0
PMI: $0

Total Monthly Payment: $0
Chart Mortgage:

Loading Walk Score...

What's Nearby?

Powered by Yelp


REALTOR® Details