35 45 Street SW, Calgary, Alberta

Residential For Sale in Calgary, Alberta

$915,000

  • Residential
    Property Type
  • 4
    Bedrooms
  • 2
    Bath
  • 1
    Garage
  • 1,232
    Sq Ft
  • 1957
    Year Built

OPEN HOUSE Saturday, February 21st, 1:00 – 3:00. This is the one you’ve been waiting for! A comfortable and beautifully maintained, 1230 SF bungalow in the best part of Wildwood! This owner-occupied home has been meticulously updated and cared for. The chef’s kitchen with a huge island open to the living room and dining room is the hub of the home. Three well-sized bedrooms on the main floor share a large, modern family bathroom. A large fourth bedroom and full second bathroom downstairs, along with a comfortable family room, fitness nook, and big utility/laundry room, offer plenty more living space. The exterior is clad in Hardie Board siding over R4.5 insulation. Generous, updated windows bring the sunshine in while the front yard boasts a new concrete patio and walkway surrounded by impressive landscaping. A single, oversized attached garage and large front drive offer plenty of parking space, while this generous 70' x 100' property offers plenty of room for the whole family. The large backyard features a generous paving-stone patio and gas BBQ hookup – perfect for summer entertaining. There’s also plenty of additional backyard green space and lush landscaping throughout. You're surrounded by nature and less than two blocks from Wildwood Elementary, the community centre, hockey rink, sports courts, and community garden. With Edworthy Park, the Douglas Fir Trail, and the Edworthy off-leash park a short walk away, and downtown only a 10-minute commute, it’s no wonder Wildwood is such a coveted place to call home. Call to book your showing today!

Street Address: 35 45 Street SW
City: Calgary
Province/State: Alberta
Postal Code: N/A
County/Parish: Calgary
Subdivision: Wildwood
Country: Canada
Latitude: 51.05384108
Longitude: -114.15314217

MLS® Number: A2287636
Price: $915,000
Property Area: 1,232 Sq ft
Bedrooms: 4
Bathrooms Half: 0
Bathrooms Full: 2
Living Area: 1,232 Sq ft
Building Area: 0 Sq ft
Year Built: 1957
Listing Date: Feb 20, 2026
Garage Spaces: 1
Property Type: Residential
Property Subtype: Detached
MLS Status: Active

Additional Details

Flooring: N/A
Construction: Cement Fiber Board,Stucco
Parking: Single Garage Attached
Appliances: Built-In Oven,Built-In Range,Dishwasher,Dryer,Freezer,Garburator,Microwave,Range Hood,Refrigerator,Washer,Window Coverings
Stories: N/A
Zoning: R-CG
Fireplace: N/A
Amenities: Golf,Park,Playground,Pool,Schools Nearby,Shopping Nearby,Sidewalks,Street Lights,Tennis Court(s),Walking/Bike Paths

Utilities & Systems

Heating: Forced Air,Natural Gas
Cooling: None

Property Type Residential
Building Type Detached
Square Footage 1,232 sqft
Community Name Wildwood
Subdivision Name Wildwood
Title Fee Simple
Land Size 7,000 sqft
Built in 1957
Annual Property Taxes Contact listing agent
Parking Type Garage

Bedrooms
Above Grade 3
Bathrooms
Total 2
Partial 0
Interior Features
Appliances Included Built-In Oven, Built-In Range, Dishwasher, Dryer, Freezer, Garburator, Microwave, Range Hood, Refrigerator, Washer, Window Coverings
Flooring Carpet, Hardwood, Tile
Building Features
Features Central Vacuum, Closet Organizers, Kitchen Island, Open Floorplan, Quartz Counters, Recessed Lighting
Construction Material Cement Fiber Board, Stucco
Structures Deck, Patio
Heating & Cooling
Cooling None
Heating Type Forced Air, Natural Gas
Exterior Features
Exterior Finish Cement Fiber Board, Stucco
Neighbourhood Features
Community Features Golf, Park, Playground, Pool, Schools Nearby, Shopping Nearby, Sidewalks, Street Lights, Tennis Court(s), Walking/Bike Paths
Amenities Nearby Golf, Park, Playground, Pool, Schools Nearby, Shopping Nearby, Sidewalks, Street Lights, Tennis Court(s), Walking/Bike Paths
Maintenance or Condo Information
Parking
Parking Type Garage
Total Parking Spaces 5

Interior Size
Total Finished Area: 1,232 sq ft
Total Finished Area (Metric): 114.46 sq m
Main Level: 1,232 sq ft
Below Grade: 1,006 sq ft
Room Count
Bedrooms: 4
Bathrooms: 2
Full Bathrooms: 2
Rooms Above Grade: 6
Lot Information
Lot Size: 7,000 sq ft
Lot Size (Acres): 0.16 acres
Frontage: 70 ft
Legal
Legal Description: 4941HC;27;9
Title to Land: Fee Simple

  • Central Vacuum
  • Closet Organizers
  • Kitchen Island
  • Open Floorplan
  • Quartz Counters
  • Recessed Lighting
  • Private Yard
  • Built-In Oven
  • Built-In Range
  • Dishwasher
  • Dryer
  • Freezer
  • Garburator
  • Microwave
  • Range Hood
  • Refrigerator
  • Washer
  • Window Coverings
  • Full
  • Golf
  • Park
  • Playground
  • Pool
  • Schools Nearby
  • Shopping Nearby
  • Sidewalks
  • Street Lights
  • Tennis Court(s)
  • Walking/Bike Paths
  • Cement Fiber Board
  • Stucco
  • Poured Concrete
  • Back Lane
  • Back Yard
  • Front Yard
  • Gentle Sloping
  • Landscaped
  • Single Garage Attached
  • Deck
  • Patio

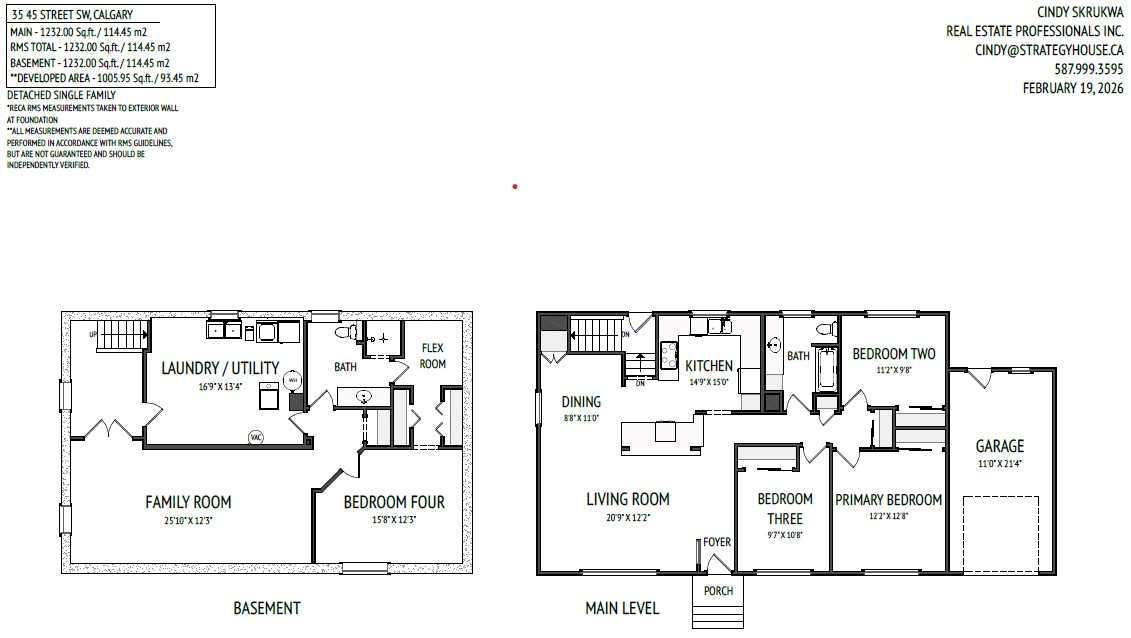
Main Level

Living Room 20`9" x 12`2"
Dining Room 11`0" x 8`8"
Kitchen 15`0" x 14`9"
Bedroom - Primary 12`8" x 12`2"
Bedroom 11`2" x 9`8"
Bedroom 10`8" x 9`7"
4pc Bathroom 10`2" x 7`7"
Bedroom 15`8" x 12`3"
3pc Bathroom 9`2" x 8`11"
Family Room 25`10" x 12`3"
Flex Space 6`11" x 6`4"
Furnace/Utility Room 16`9" x 13`4"

Monthly Payment Breakdown
Principal & Interest: $0
Property Tax: $0
Home Insurance: $0
HOA Fees: $0
PMI: $0

Total Monthly Payment: $0
Chart Mortgage:

Loading Walk Score...

What's Nearby?

Powered by Yelp


REALTOR® Details