308 John Avenue SW, Diamond Valley, Alberta

Residential For Sale in Diamond Valley, Alberta

$724,499

  • Residential
    Property Type
  • 2
    Bedrooms
  • 2
    Bath
  • 2
    Garage
  • 1,384
    Sq Ft
  • 2026
    Year Built

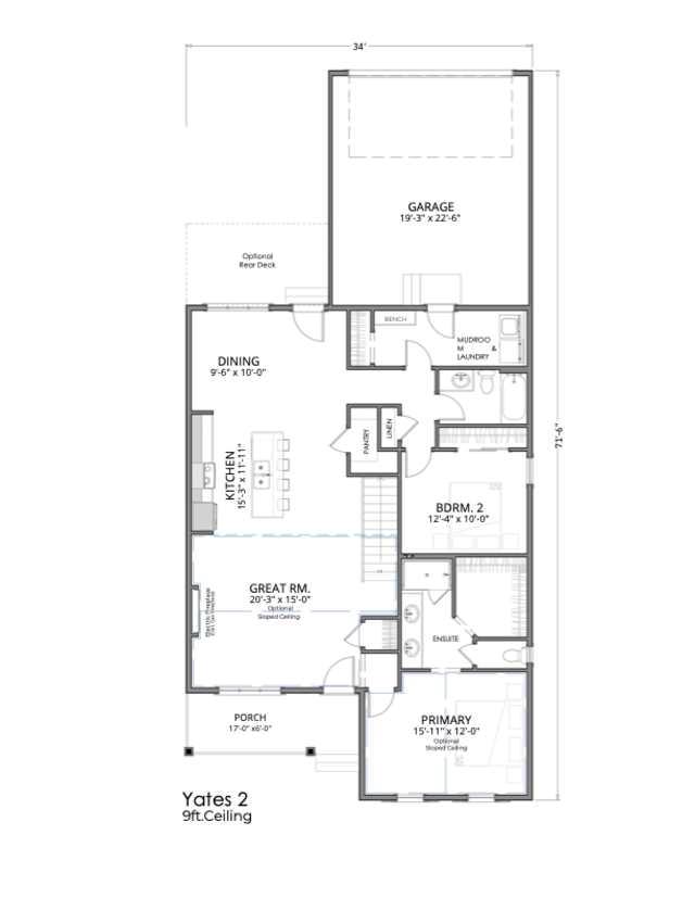
For more information, please click the "More Information" button. Quietly elegant and thoughtfully designed, the Yates 2 bungalow custom home offers a refined approach to single-level living in the heart of Diamond Ridge in Diamond Valley. Located on Lot 40 at 308 John Avenue SW, this new construction home provides 1,384 sq. ft. of thoughtfully planned space, balancing openness with intentional privacy. Wide front-facing windows flood the main living area with natural light, enhancing the home’s warm and welcoming atmosphere. The open-concept design flows seamlessly from the kitchen into the dining and living areas—ideal for both everyday living and hosting. With 9’ ceilings throughout the main floor, the space feels bright and expansive. The kitchen is anchored by a large central island with breakfast bar, stone countertops, soft-close cabinetry, and a premium LG appliance package—delivering both elevated design and everyday functionality. This well-balanced layout offers 2 bedrooms and 2 full bathrooms, including a spacious primary retreat complete with a walk-in closet and four-piece ensuite. Buyers have the opportunity to select a configuration that further enhances privacy by positioning the primary bedroom in a more secluded rear setting—creating a true separation between the sleeping quarters and main living areas. This thoughtful design option adds flexibility and a more estate-inspired feel to bungalow living. A functional mudroom with main-floor laundry adds convenience and practical organization, supporting easy, low-maintenance living. Exterior finishes showcase a cohesive modern aesthetic, including black asphalt shingles, white horizontal fiber cement siding, black window trim, black metal soffits, fascia and eavestroughs, and black vinyl-clad windows—offering strong curb appeal with lasting durability. Buyers can further personalize the home with optional features such as a gas fireplace, vaulted ceilings in the great room and/or primary bedroom, and the flexibility to choose a detached rear garage, attached rear garage, or no garage configuration, allowing the property to be tailored to individual lifestyle preferences. Situated within the thoughtfully planned community of Diamond Ridge, residents enjoy close access to local shops, cafés, schools, parks, pathway systems, and nearby access to the Sheep River and regional trails. With convenient connections to Okotoks and south Calgary, Diamond Ridge offers the ideal balance of small-town charm and modern accessibility. Estimated completion is scheduled for Summer 2026. Photos contain are rendered examples.

Street Address: 308 John Avenue SW
City: Diamond Valley
Province/State: Alberta
Postal Code: N/A
County/Parish: Foothills County
Subdivision: NONE
Country: Canada
Latitude: 50.66802114
Longitude: -114.28688156

MLS® Number: A2287416
Price: $724,499
Property Area: 1,384 Sq ft
Bedrooms: 2
Bathrooms Half: 0
Bathrooms Full: 2
Living Area: 1,384 Sq ft
Building Area: 0 Sq ft
Year Built: 2026
Listing Date: Feb 18, 2026
Garage Spaces: 2
Property Type: Residential
Property Subtype: Detached
MLS Status: Active

Additional Details

Flooring: N/A
Construction: Composite Siding,Metal Siding
Parking: Double Garage Attached,Parking Pad
Appliances: Dishwasher,Dryer,Microwave,Oven,Refrigerator,Stove(s),Tankless Water Heater,Washer
Stories: N/A
Zoning: R1
Fireplace: N/A
Amenities: Schools Nearby,Shopping Nearby

Utilities & Systems

Heating: Forced Air,Natural Gas
Cooling: None

Property Type Residential
Building Type Detached
Square Footage 1,384 sqft
Community Name NONE
Subdivision Name NONE
Title Fee Simple
Land Size 4,646 sqft
Built in 2026
Annual Property Taxes Contact listing agent
Parking Type Garage
Time on MLS Listing 2 days

Bedrooms
Above Grade 2
Bathrooms
Total 2
Partial 0
Interior Features
Appliances Included Dishwasher, Dryer, Microwave, Oven, Refrigerator, Stove(s), Tankless Water Heater, Washer
Flooring Vinyl
Building Features
Features Double Vanity, Granite Counters, High Ceilings, Kitchen Island, Open Floorplan, Pantry, Recessed Lighting, Tankless Hot Water, Walk-In Closet(s)
Construction Material Composite Siding, Metal Siding
Structures Deck, Porch
Heating & Cooling
Cooling None
Heating Type Forced Air, Natural Gas
Exterior Features
Exterior Finish Composite Siding, Metal Siding
Neighbourhood Features
Community Features Schools Nearby, Shopping Nearby
Amenities Nearby Schools Nearby, Shopping Nearby
Parking
Parking Type Garage
Total Parking Spaces 4

Interior Size
Total Finished Area: 1,384 sq ft
Total Finished Area (Metric): 128.58 sq m
Room Count
Bedrooms: 2
Bathrooms: 2
Full Bathrooms: 2
Rooms Above Grade: 5
Lot Information
Lot Size: 4,646 sq ft
Lot Size (Acres): 0.11 acres
Frontage: 41 ft

  • Double Vanity
  • Granite Counters
  • High Ceilings
  • Kitchen Island
  • Open Floorplan
  • Pantry
  • Recessed Lighting
  • Tankless Hot Water
  • Walk-In Closet(s)
  • Private Yard
  • Dishwasher
  • Dryer
  • Microwave
  • Oven
  • Refrigerator
  • Stove(s)
  • Tankless Water Heater
  • Washer
  • Full
  • Schools Nearby
  • Shopping Nearby
  • Composite Siding
  • Metal Siding
  • Electric
  • Poured Concrete
  • Back Lane
  • Back Yard
  • Front Yard
  • Double Garage Attached
  • Parking Pad
  • Deck
  • Porch

Floor plan information is not available for this property.

Monthly Payment Breakdown
Principal & Interest: $0
Property Tax: $0
Home Insurance: $0
HOA Fees: $0
PMI: $0

Total Monthly Payment: $0
Chart Mortgage:

Loading Walk Score...

What's Nearby?

Powered by Yelp


REALTOR® Details