111, 8716 108 Street , Grande Prairie, Alberta

Commercial For Sale in Grande Prairie, Alberta

$579,900

  • Commercial
    Property Type
  • 0
    Bedrooms
  • 0
    Bath
  • 0
    Garage
  • 3,565
    Sq Ft
  • 2006
    Year Built

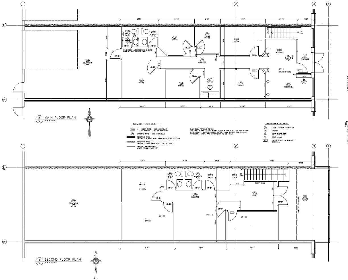
Office Condo Bay with great exposure. Features two floors of premium office space with a small rear shop. Main floor office area is 1380 sqft with reception, 5 offices, two bathrooms, small kitchen and storage room. Front vestibule allows separate access upstairs to 1495 sqft of 4 offices, a large bright board room and bathroom. Also, there is a 690 sqft shop area in the rear with an over head door and small mezzanine. Currently there are tenants in two offices upstairs that have access to the board room for $775 per month gross each with two more vacant ones that could be rented, and the back shop area is rented for $1300 gross per month. All 3 current tenants would like to stay if possible. This is a great opportunity to run your office out of the main floor and have your mortgage mostly covered by the other tenants in the building and also allow you the flexibility to grow in the future. The main floor office space would be available upon possession. Building offers flexible options for keeping as an income property, partial income and owner use, or complete owner occupation. Lots of possibilities.

Street Address: 111, 8716 108 Street
City: Grande Prairie
Province/State: Alberta
Postal Code: N/A
County/Parish: Grande Prairie
Subdivision: Richmond Industrial Park
Country: Canada
Latitude: 55.15931115
Longitude: -118.82119330

MLS® Number: A2279138
Price: $579,900
Property Area: 0 Sq ft
Bedrooms: 0
Bathrooms Half: 0
Bathrooms Full: 0
Living Area: 0 Sq ft
Building Area: 3,565 Sq ft
Year Built: 2006
Listing Date: Jan 17, 2026
Garage Spaces: 0
Property Type: Commercial
Property Subtype: Office
MLS Status: Active

Additional Details

Flooring: N/A
Construction: N/A
Parking: N/A
Appliances: N/A
Stories: N/A
Zoning: IB
Fireplace: N/A
Amenities: N/A

Utilities & Systems

Heating: Forced Air,Natural Gas
Cooling: Central Air
Water Source: Public
Sewer: Public Sewer

Property Type Commercial
Building Type Office
Community Name Richmond Industrial Park
Subdivision Name Richmond Industrial Park
Title Fee Simple
Land Size Unknown
Built in 2006
Annual Property Taxes Contact listing agent
Parking Type N/A
Time on MLS Listing 60 days

Heating & Cooling
Cooling Central Air
Heating Type Forced Air, Natural Gas
Maintenance or Condo Information
Maintenance Fees $474

Interior Size
Total Building Area: 3,565 sq ft
Room Count
Lot Information

  • Poured Concrete

Floor plan information is not available for this property.

Monthly Payment Breakdown
Principal & Interest: $0
Property Tax: $0
Home Insurance: $0
HOA Fees: $0
PMI: $0

Total Monthly Payment: $0
Chart Mortgage:

Loading Walk Score...

What's Nearby?

Powered by Yelp


REALTOR® Details

Mitch Koll