2405 4 Avenue NW, Calgary, Alberta

Residential For Sale in Calgary, Alberta

$2,199,000

  • Residential
    Property Type
  • 6
    Bedrooms
  • 6
    Bath
  • 3
    Garage
  • 3,302
    Sq Ft
  • 2025
    Year Built

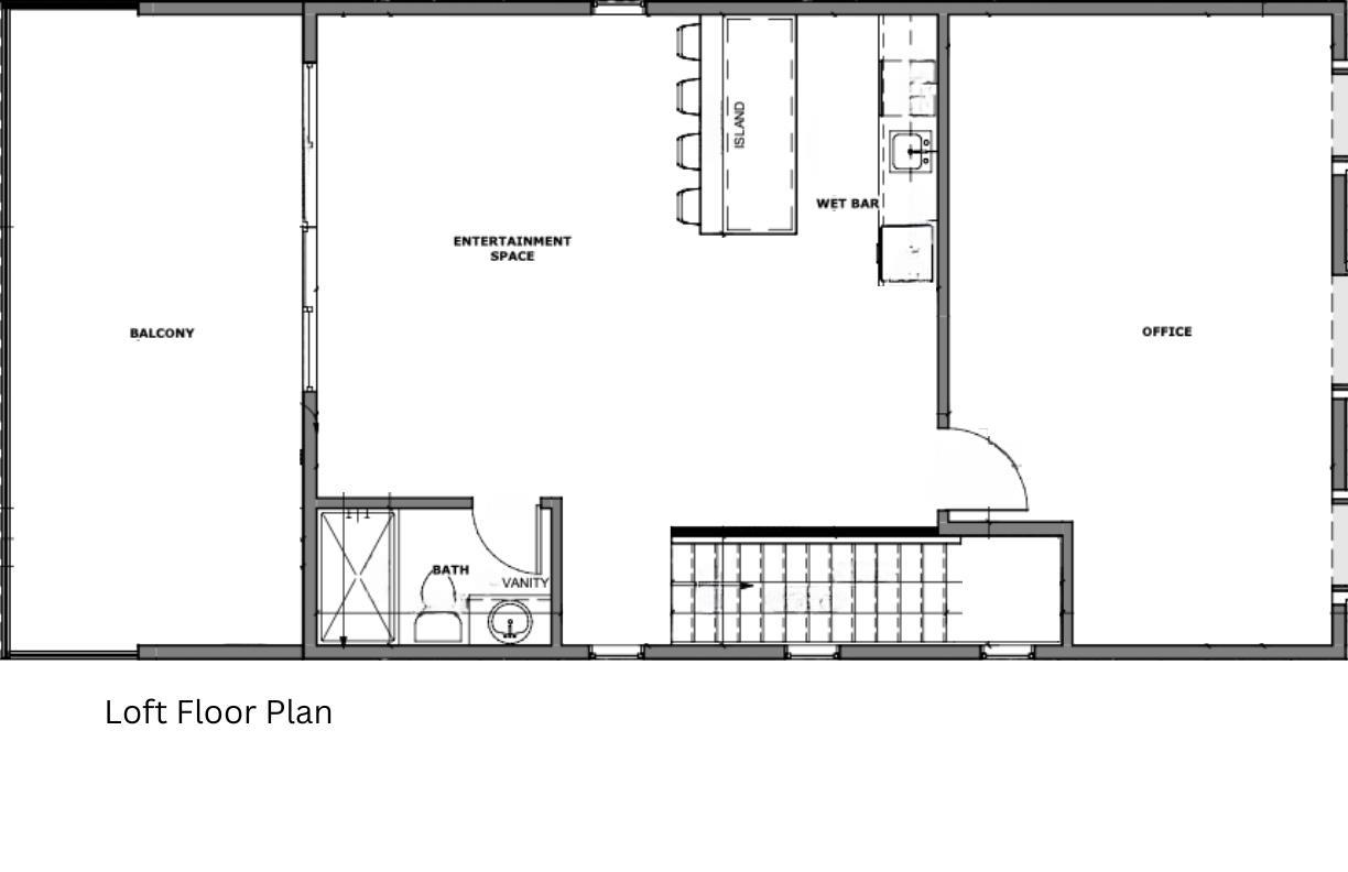
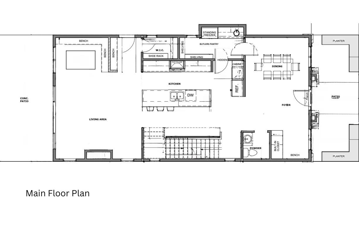
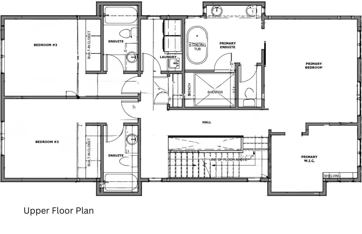
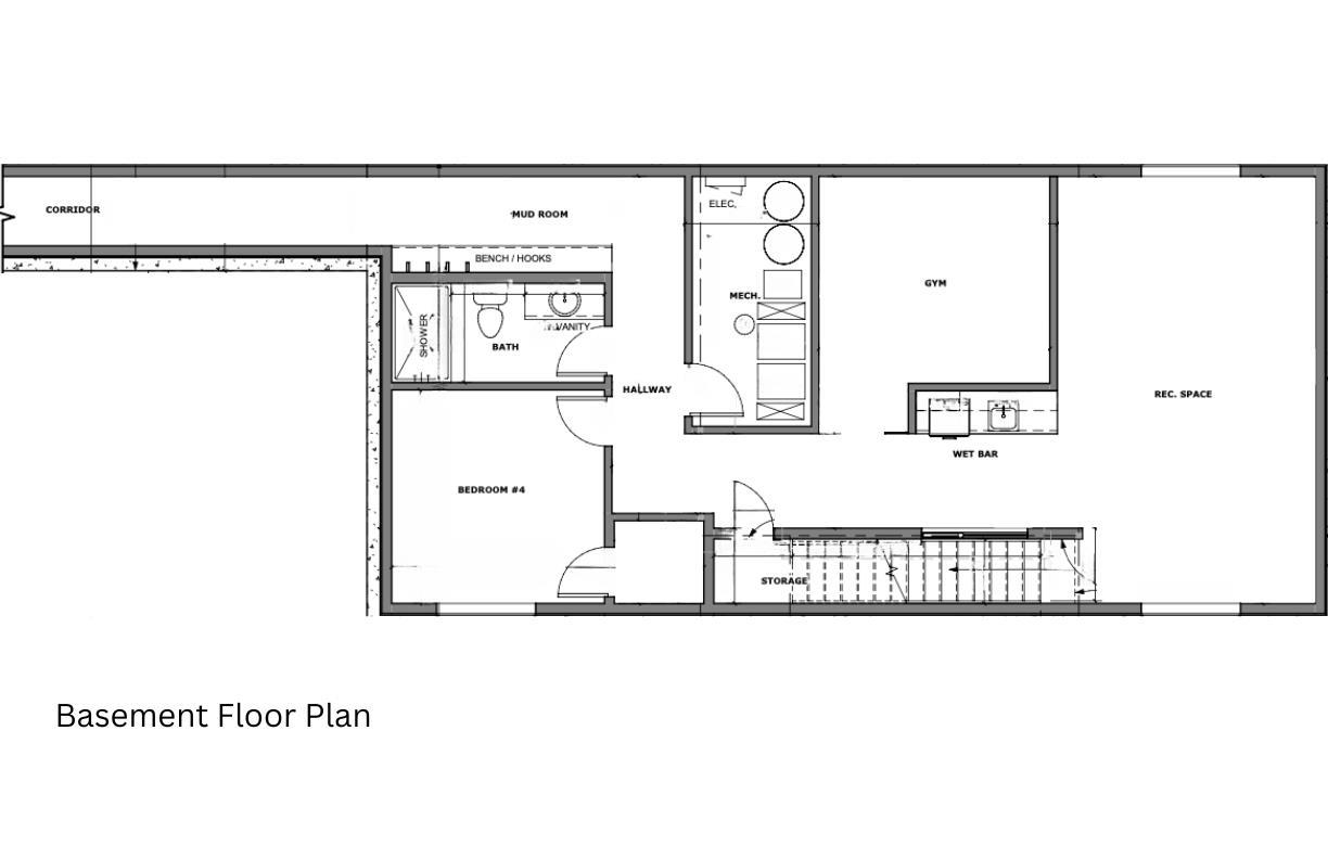
Welcome to luxury living in this stunning detached home offering over 3,000 sqft of thoughtfully designed space. From top to bottom, this residence blends elegance, functionality, and unique features that set it apart. The fully developed basement is an entertainer’s dream, complete with a spacious rec room, wet bar, bedroom, full bathroom, walk-in closet, and a private gym. A one-of-a-kind underground tunnel seamlessly connects the basement to the triple car garage, keeping you sheltered from the elements year-round. On the main floor, a grand foyer welcomes you into an open-concept layout featuring a formal dining room, hidden butler’s pantry, mudroom with a walk-in closet, and a cozy living room with a gas fireplace. A unique booth-style seating area adds charm, while the concrete patio extends the living space outdoors. The second floor is home to a spacious primary suite with a large walk-in closet and spa-like ensuite. Two additional bedrooms, each with their own ensuite, provide comfort and privacy, while the convenient upper-floor laundry completes the level. The third-floor loft elevates the home further, offering a versatile office space, wet bar with an island, entertainment area, bathroom, and a private balcony with beautiful views. A truly exceptional home in an unbeatable location—don’t miss your chance to own this one-of-a-kind masterpiece!

Street Address: 2405 4 Avenue NW
City: Calgary
Province/State: Alberta
Postal Code: N/A
County/Parish: Calgary
Subdivision: West Hillhurst
Country: Canada
Latitude: 51.05591440
Longitude: -114.11583150

MLS® Number: A2264372
Price: $2,199,000
Property Area: 3,302 Sq ft
Bedrooms: 6
Bathrooms Half: 1
Bathrooms Full: 5
Living Area: 3,302 Sq ft
Building Area: 0 Sq ft
Year Built: 2025
Listing Date: Oct 16, 2025
Garage Spaces: 3
Property Type: Residential
Property Subtype: Detached
MLS Status: Active

Additional Details

Flooring: N/A
Construction: Wood Frame
Parking: Triple Garage Detached
Appliances: Dishwasher,Garage Control(s),Microwave,Oven,Range Hood,Refrigerator,Stove(s)
Stories: N/A
Zoning: DC
Fireplace: N/A
Amenities: Park,Schools Nearby,Shopping Nearby,Sidewalks,Street Lights,Walking/Bike Paths

Utilities & Systems

Heating: Forced Air
Cooling: None

Property Type Residential
Building Type Detached
Square Footage 3,302 sqft
Community Name West Hillhurst
Subdivision Name West Hillhurst
Title Fee Simple
Land Size 4,340 sqft
Built in 2025
Annual Property Taxes Contact listing agent
Parking Type Garage

Bedrooms
Above Grade 4
Bathrooms
Total 6
Partial 1
Interior Features
Appliances Included Dishwasher, Garage Control(s), Microwave, Oven, Range Hood, Refrigerator, Stove(s)
Flooring Carpet, Hardwood, Tile
Building Features
Features Built-in Features, Double Vanity, High Ceilings, No Animal Home, No Smoking Home, Open Floorplan, Pantry
Construction Material Wood Frame
Structures Patio
Heating & Cooling
Cooling None
Heating Type Forced Air
Exterior Features
Exterior Finish Wood Frame
Neighbourhood Features
Community Features Park, Schools Nearby, Shopping Nearby, Sidewalks, Street Lights, Walking/Bike Paths
Amenities Nearby Park, Schools Nearby, Shopping Nearby, Sidewalks, Street Lights, Walking/Bike Paths
Parking
Parking Type Garage
Total Parking Spaces 3

Interior Size
Total Finished Area: 3,302 sq ft
Total Finished Area (Metric): 306.76 sq m
Main Level: 1,183 sq ft
Upper Level: 2,119 sq ft
Below Grade: 1,140 sq ft
Room Count
Bedrooms: 6
Bathrooms: 6
Full Bathrooms: 5
Half Bathrooms: 1
Rooms Above Grade: 9
Lot Information
Lot Size: 4,340 sq ft
Lot Size (Acres): 0.10 acres
Frontage: 34 ft

  • Built-in Features
  • Double Vanity
  • High Ceilings
  • No Animal Home
  • No Smoking Home
  • Open Floorplan
  • Pantry
  • Lighting
  • Other
  • Dishwasher
  • Garage Control(s)
  • Microwave
  • Oven
  • Range Hood
  • Refrigerator
  • Stove(s)
  • Finished
  • Full
  • Park
  • Schools Nearby
  • Shopping Nearby
  • Sidewalks
  • Street Lights
  • Walking/Bike Paths
  • Wood Frame
  • Gas
  • Poured Concrete
  • Back Lane
  • Triple Garage Detached
  • Patio

Floor plan information is not available for this property.

Monthly Payment Breakdown
Principal & Interest: $0
Property Tax: $0
Home Insurance: $0
HOA Fees: $0
PMI: $0

Total Monthly Payment: $0
Chart Mortgage:

Loading Walk Score...

What's Nearby?

Powered by Yelp


REALTOR® Details